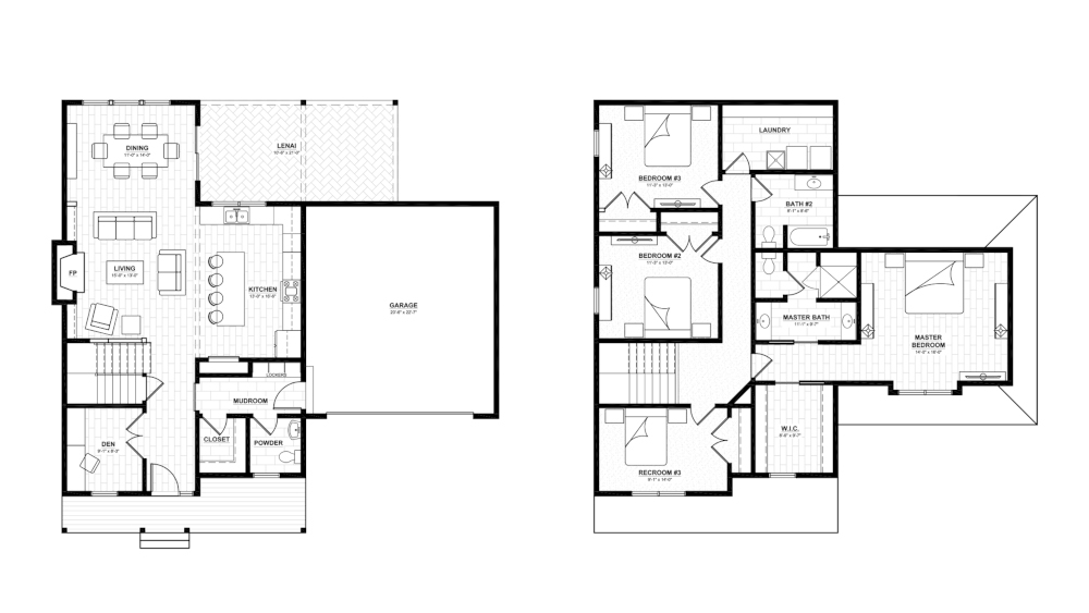
SPEC HOUSE
Town of Amherst
DATE
September 2018
PROJECT TYPE
Residential
SIZE
2,500 SF +/-
AFFILIATION
KARLdesign
TEAM
N/A
STATUS
Conceptual
ROLE
I worked on this house design to schematic design.
DESCRIPTION
This house was designed for a piece of property that I was going to purchase but ending up losing it in the end. The initial plan was to build this as a learning experience and sell it for a profit. That plan unfortunately did not work out.